Reforma tu vivienda tal y como sueñas
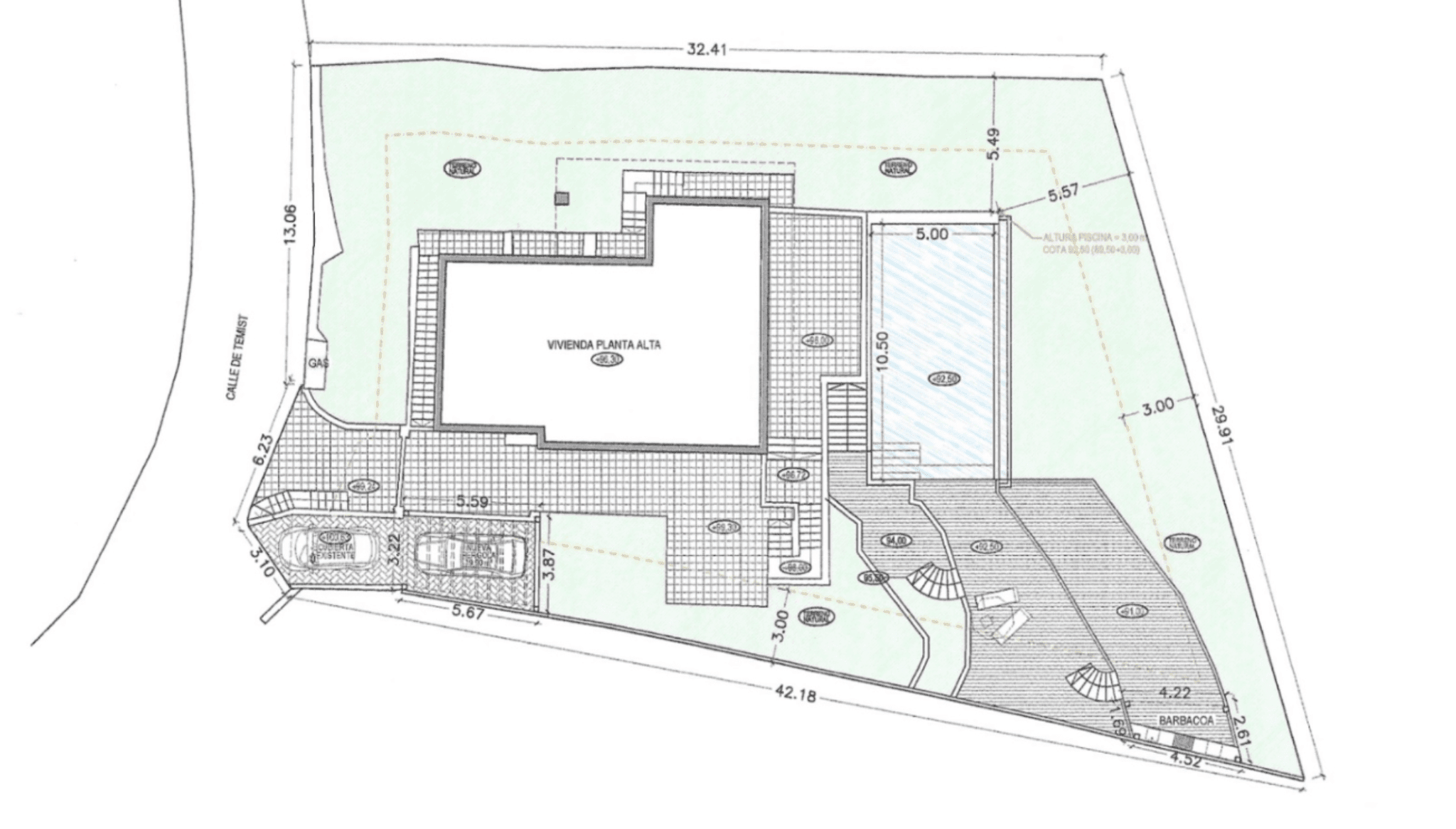
08 de enero de 2024 - 13:14Reforma tu vivienda tal y como sueñas Foto Anterior4 de 8Foto SiguienteVer el artículo original: Este es el chalet con unas vistas privilegiadas al mar de Dénia que puede ser tuyo Descubre las maravillosas vistas a la Bahía de Dénia, Gandía e incluso Cullera Fachada de la villa con grandes vistas Parcela de la vivienda Plano cenital de la vivienda para reformar Plano del chalet con grandes vistas Situación geográfica de la vivienda Vistas especiales a la Bahía de Dénia Vistas panorámicas al castillo y a la ciudad de Dénia